I hope you enjoy these weekly updates as I navigate through the business of flipping houses one house at a time!! Check in each Friday to see weekly update of how this house progresses! To catch up on the progress on Nessie, check out her previous posts here. If you’re new here (Hello!!!), or just enjoy walking down memory lane, you can see my 6 previous flip houses here. Thanks for coming along for the ride!!
Guess what!! It looks like we're finally getting a building permit!...... Tuesday. BUT this week we did get very important approval from the health department to add a powder room into the basement. This will be a game changer for the house and what we'll be able to sell if for once it's done!
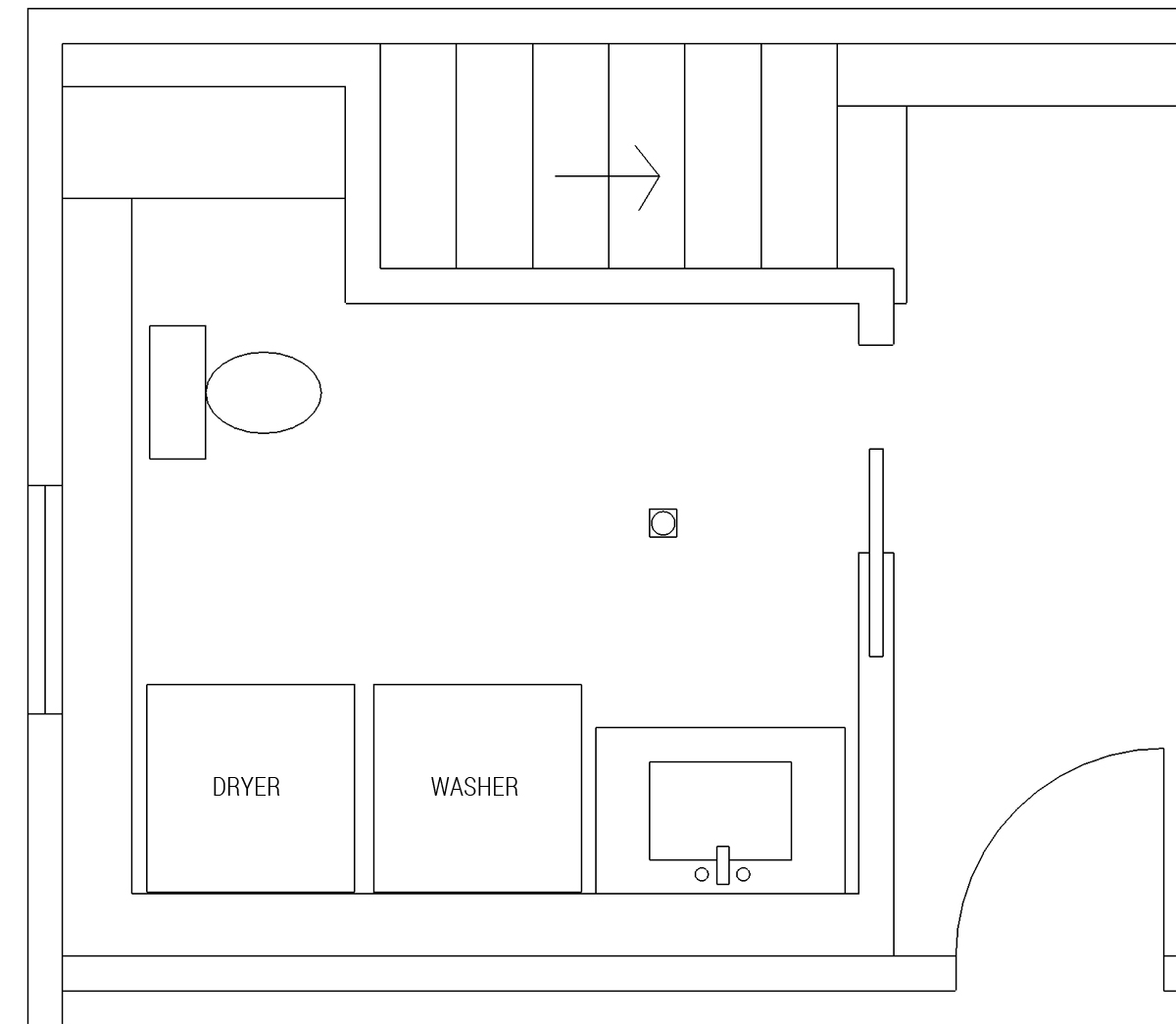
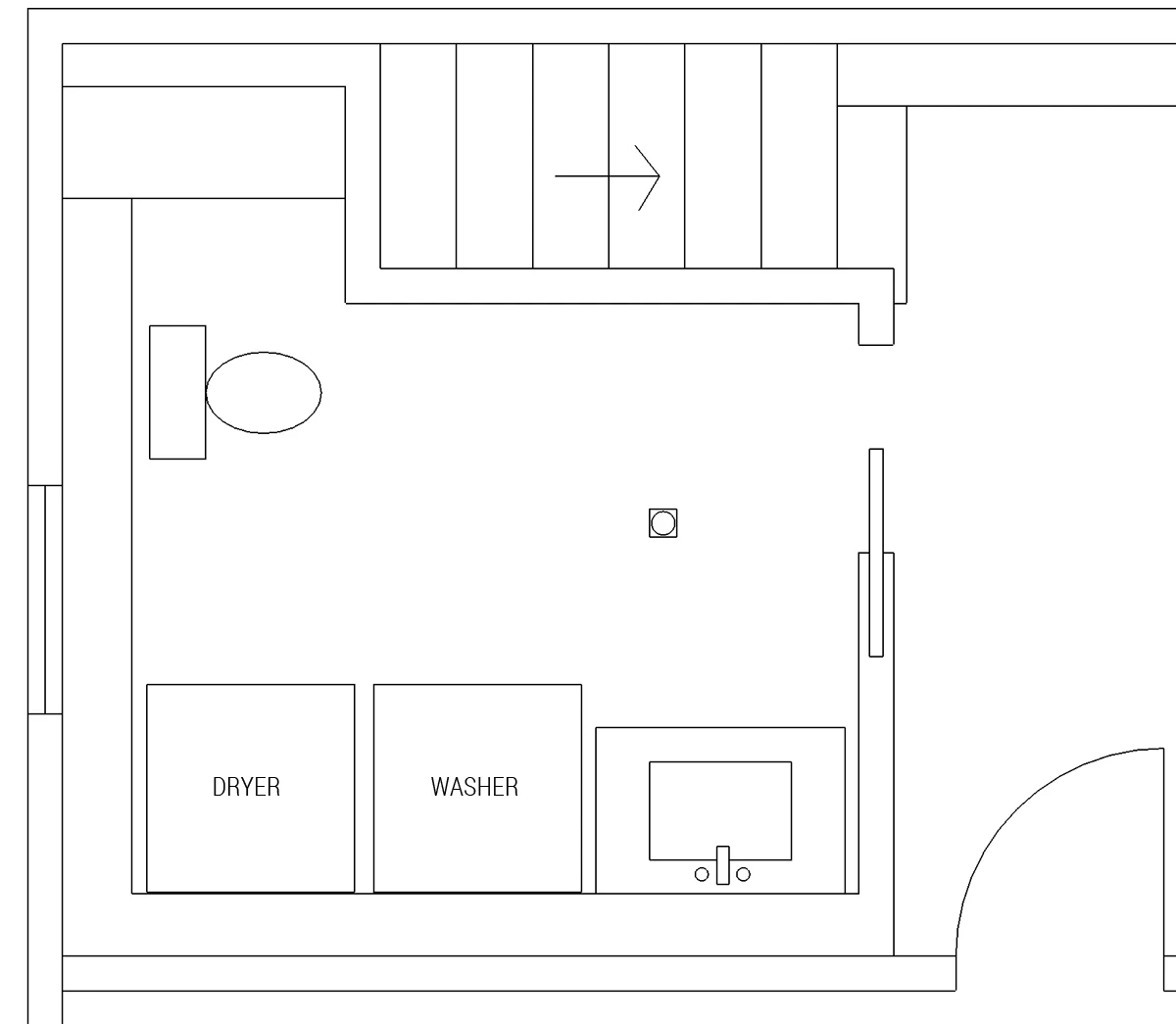
I'll be adding a toilet into the existing laundry area and finishing the space so it'll be a spacious powder room/laundry room. It's not so good to start with, so really anything will be a huge improvement!

It's new configuration will include fancy things like a toilet that pumps up to the septic system, a sink with an actual cabinet below, and a pocket door.

Since the finished basement room- affectionately called the 'bowling alley'- is right off this space with doors to the back yard, I see this bathroom getting a lot of use. While it's not going to be totally pinterest perfect because I plan to use the existing, non-matching washer and dryer (oh the horror!!), there are so many awesome laundry rooms to get inspired by. I'm already jealous that my own laundry area is in a non-finishable area of my dingy, 117 year old basement.
I have a lot of ideas floating around in my head that I need to organize and figure out the look of this bathroom, though. I've been concentrating on the upstairs design plans until I knew this bathroom would be a reality. I finally ordered the kitchen cabinets yesterday (BLUE!!!! :-) ) and have the upstairs bathroom 80% planned. For the upstairs bathroom, I'm totally inspired by Sarah Sherman Samuel's bathroom- I've been itching to use a giant round mirror in a design and I think this might be my chance!

Next week, we should have a building permit, a wall gone, demo complete, maybe even rebuilding beginning, AND I'll share my design plans for both bathrooms. It's been my slowest start to a flip yet, but this house is FINALLY starting to build momentum!!
Have a wonderful weekend!!

